Bågvägen 31

Projekt vikingshöjd är ett modernt boende i harmoni med naturen.

Klicka in på projektets hemsida för mer information och priser, besök: www.vikingshojd.se

Högt beläget i natursköna Vikingshill/ Kummelnäs, Nacka, växer en unik boendemiljö fram där modern elegans möter orörd natur. Här erbjuds generösa tomter, fria utsikter och
Läs mer
Utgångspris
7 675 000 kr
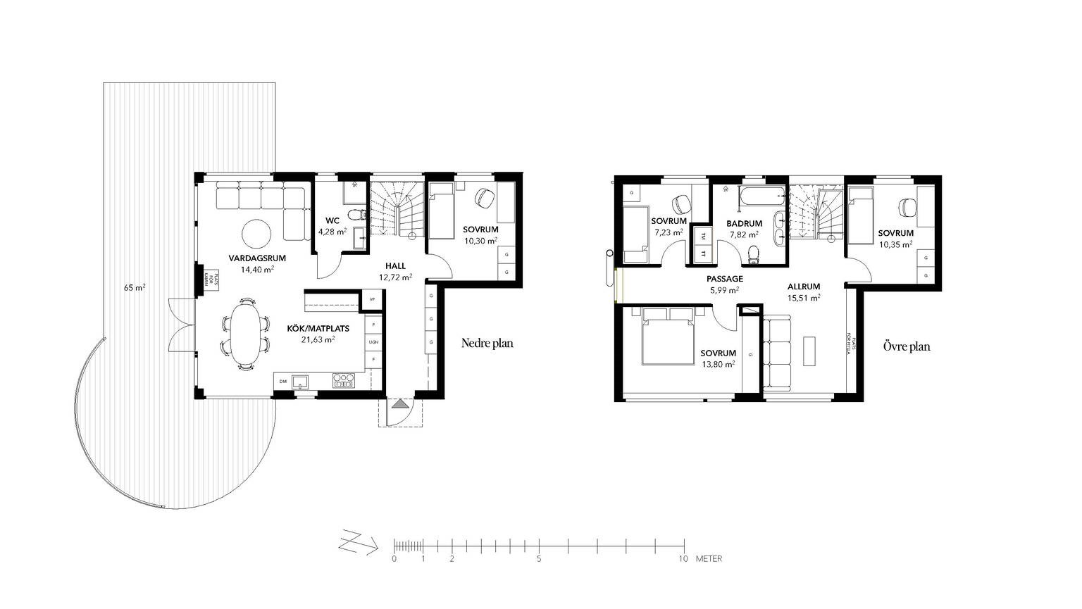
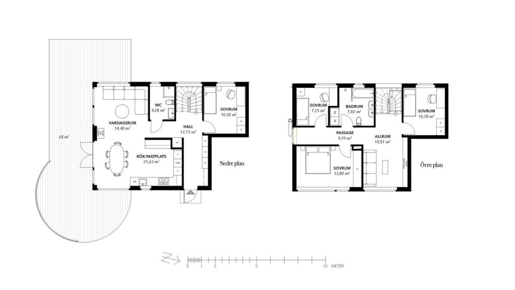
Rum 6 Boarea 136 kvm Hiss Nej Uteplats Ja Bilplats Ja Byggnadsår 2026/2027
Utgångspris 7 675 000 kr
Upplåtelseform Bostadsrätt
Adress Bågvägen 31
Postadress 132 50 Saltsjö-Boo
Område Vikingshill
Kommun Nacka
Rum 6
Boarea 136 kvm
Hiss Nej
Byggnadstyp Parhus
Uteplats Ja
Bilplats Ja
Byggnadsår 2026/2027

Byggnadsinformation

Byggnadstyp Parhus
Byggnadsår 2026/2027
Uppvärmning Energieffektiv luft-luftvärmepump
Fönster 3-glas

Energideklaration

Status Inte utfört

Föreningen

Namn Bostadsrättsföreningen Vikingshöjd
Byggnadsår 2026/2027
Byggnadstyp Parhus
Org.form Bostadsrätt
Org.nummer 769643-3189
Om föreningen Bara 20 minuter från Stockholm city väntar ett av Nackas mest unika boendelägen - Vikingshill. Här, på en privat väg med utsikt över hav och naturreservat, skapas 21 hem med generösa tomter och genomtänkta planlösningar. Att bo i Vikingshill innebär natur och hav runt knuten - badplatser, promenadstråk och naturreservat blir en del av vardagen. Samtidigt finns förskolor, skolor och aktiviteter för hela familjen nära till hands, medan citypulsen alltid är inom räckhåll. Här möts lugnet och närheten i en perfekt balans som gör livet både enklare och rikare.
Gemensamma utrymmen Gemensam miljöstation med sortering för rest- och matavfall.
Äkta förening Nej
Äger marken Ja
Antal lägenheter 21
Tillåts juridisk person Nej
Renoveringar Övrigt:
Överlåtelse- samt pantsättningsavgift tas ut enligt stadgar. Uppgifterna i denna objektsbeskrivning är grundade på av säljaren och av berörd förening lämnad information. Köpare/spekulanter uppmanas att kontrollera dessa uppgifter med föreningen rörande kommande renoveringar och eventuella avgiftsförändringar. Köpare/spekulanter är medvetna om att bostaden köpes i befintligt skick och uppmanas att undersöka bostaden ordentligt. Köparen uppmanas att kontrollera bostadens bo- och biarea om denna är väsentlig för köparen. Observera att nedtagning av väggar och/ eller väsentliga förändringar och ingrepp i bärande konstruktioner och ändring av ledningar för avlopp, värme, gas eller vatten av en lägenhet är alltid en fråga för föreningens styrelse att ta ställning till i varje enskilt fall. Detta gäller även om förändringen inte medför risker för byggnadens konstruktion. Köpare uppmanas även att kontrollera eventuella byggplaner o.s.v. i området om detta är av betydelse för köparen.
Parkering 2 p-plats/1 p-plats per bostad ingår beroende på storlek på bostaden.

Ekonomi

Pris 7 675 000 kr
Månadsavgift
Ingår förråd.
Indirekt nettoskuldsättning 1 280 352 kr

Driftkostnader

Uppvärmning 10 200 kr/år
El 8 844 kr/år
VA 8 160 kr/år
Renhållning 1 632 kr/år
Försäkring 4 080 kr/år
Övrigt 4 200 kr/år
Summa 37 116 kr/år
Driftkostnaderna är uppskattade. Övrigt avser bredband.
Personer i hushållet 4
Gabriel Bilir Reg. Fastighetsmäklare 070 421 94 50 gabriel@bergetsro.se
Assisterande fastighetsmäklare Hasan Shahid Reg. Fastighetsmäklare 073 541 19 24 hasan@bergetsro.se