Näckrosvägen 31A

KOMMANDE
Unikt våningsplan i ikoniska Vattentornet Anno 1910 – 360° utsikt, hiss rakt in & exklusiv designrenovering med arkitektritad lösning. Möjlig fyra!

Välkommen till ett sagolikt hem i hjärtat av Råsunda – det historiska Vattentornet, en utav Råsundas högsta punkter! På en av Solnas mest eftertraktade adresser ges nu en sällsynt möjlighet att
Läs mer
Utgångspris
8 195 000 kr
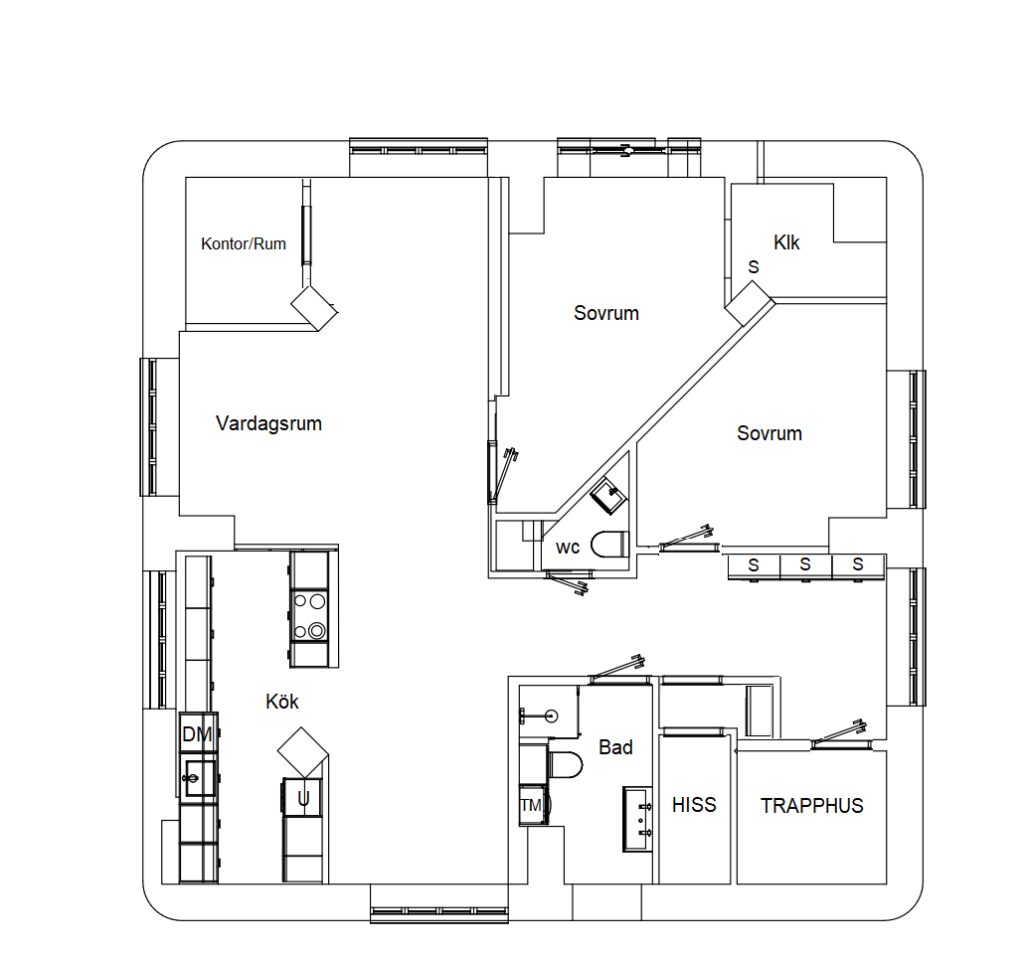
Rum 3.5 Boarea 102.4 kvm Areakälla Ekonomisk Förvaltare Månadsavgift 7 017 kr Våningsplan 4/7 Hiss Ja Byggnadsår 1910
Utgångspris 8 195 000 kr
Upplåtelseform Bostadsrätt
Adress Näckrosvägen 31A
Postadress 169 37 SOLNA
Område Råsunda
Kommun Solna
Rum 3.5
Boarea 102.4 kvm
Areakälla Ekonomisk Förvaltare
Våningsplan 4/7
Hiss Ja
Byggnadstyp Flerbostadshus
Byggnadsår 1910
3 ROK enligt lägenhetsförteckning, disponeras idag som 3,5 ROK.

Byggnadsinformation

Byggnadstyp Flerbostadshus
Byggnadsår 1910
Uppvärmning Fjärrvärme

Energideklaration

Status Utfört (2019-07-06)
Energiklass E

Föreningen

Namn BRF Slagrutan
Byggnadsår 1910
Byggnadstyp Flerbostadshus
Org.form Bostadsrätt
Org.nummer 716421-8377
Om föreningen Brf Slagrutan är en äkta förening som bildades 1992 och består av 8 lägenheter i Råsundas gamla vattentorn med adressen Näckrosvägen 31A. Föreningen äger marken

HISTORIA
Vattentornet uppfördes av byggnadsfirma Kreuger & Toll efter ritningar av Sigge Cronstedt. Bygget stort klart 1910 och vattnet pumpades via en pumpstation vid Ulriksdals allé från grusåsen Stockholmsåsen. I tornet fanns också en friluftsservering och dansgolv. Senare hyrdes tornet av apoteket Kronan som hade ett laboratorium för medicintillverkning där. På 1980-talet användes tornet till konstnärsateljéer och i början av 1990-talet byggdes det om till åtta bostadsrättslägenheter.
Gemensamma utrymmen Utemiljö med utemöbler.
Föreningens ekonomi Avgifterna höjdes med 20% i mars 2024, inga planerade höjningar i dagsläget enligt styrelsen 2025-04-23.
Äkta förening Ja
Äger marken Ja
Antal lägenheter 8
TV/bredband TV och bredband via Tele2.
Tillåts juridisk person Nej
Tillåts delat ägande Ja
Renoveringar Utförda renoveringar:
Energideklaration, byte frånluftsfläkt, kontroll brandgasfläkt och spjäll 2019
Byte av porttelefon, OVK, rengöring ventilationskanaler 2020
Fönsterrenovering, stamspolning, kontroll brandgasfläkt och spjäll 2021
Kontroll brandgasfläkt och spjäll 2022
Målning av fasad pumphus, kontroll brandgasfläkt och spjäll 2023
Ommålning av förråd 2023 och 2024

Kommande renoveringar:
Inga större renoveringar i dagsläget enligt styrelsen 2025-04-11.

Övrigt:
Överlåtelse- samt pantsättningsavgift tas ut enligt stadgar. Uppgifterna i denna objektsbeskrivning är grundade på av säljaren och av berörd förening lämnad information. Köpare/spekulanter uppmanas att kontrollera dessa uppgifter med föreningen rörande kommande renoveringar och eventuella avgiftsförändringar. Köpare/spekulanter är medvetna om att bostaden köpes i befintligt skick och uppmanas att undersöka bostaden ordentligt. Köparen uppmanas att kontrollera bostadens bo- och biarea om denna är väsentlig för köparen. Observera att nedtagning av väggar och/ eller väsentliga förändringar och ingrepp i bärande konstruktioner och ändring av ledningar för avlopp, värme, gas eller vatten av en lägenhet är alltid en fråga för föreningens styrelse att ta ställning till i varje enskilt fall. Detta gäller även om förändringen inte medför risker för byggnadens konstruktion. Köpare uppmanas även att kontrollera eventuella byggplaner o.s.v. i området om detta är av betydelse för köparen.
Parkering I dagsläget så har föreningen avtal med Signalisten på 8st p-platser på Näckrosvägen (en plats till vardera lägenhet) Alla betalar sin p-plats samtidigt som hyran, 1134 SEK/månad.

Ekonomi

Pris 8 195 000 kr
Månadsavgift 7 017 kr
Ink värme, vatten samt TV grundutbud. Alla medlemmar har varsitt kallförråd i separat byggnad.
Indirekt nettoskuldsättning 746 299 kr

Driftkostnader

El 8 000 kr/år
Försäkring 2 400 kr/år
Summa 10 400 kr/år
Personer i hushållet 3
Gabriel Bilir Reg. Fastighetsmäklare 070 421 94 50 gabriel@bergetsro.se
Assisterande fastighetsmäklare Hasan Shahid Reg. Fastighetsmäklare 073 541 19 24 hasan@bergetsro.se