Sandhamnsgatan 75

KOMMANDE
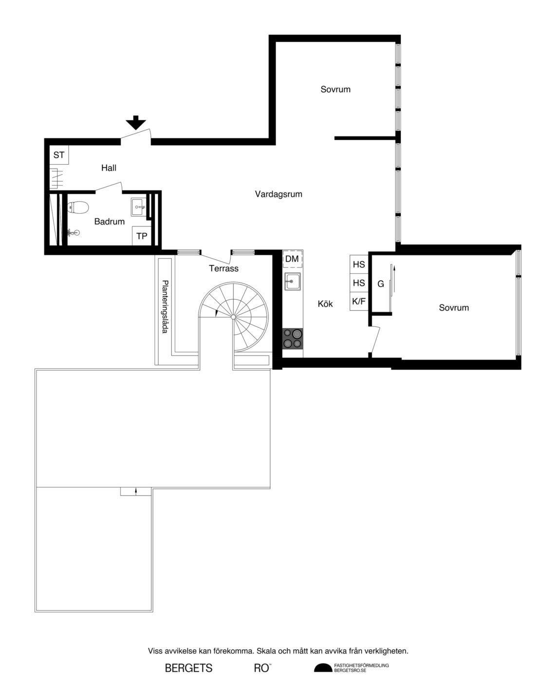
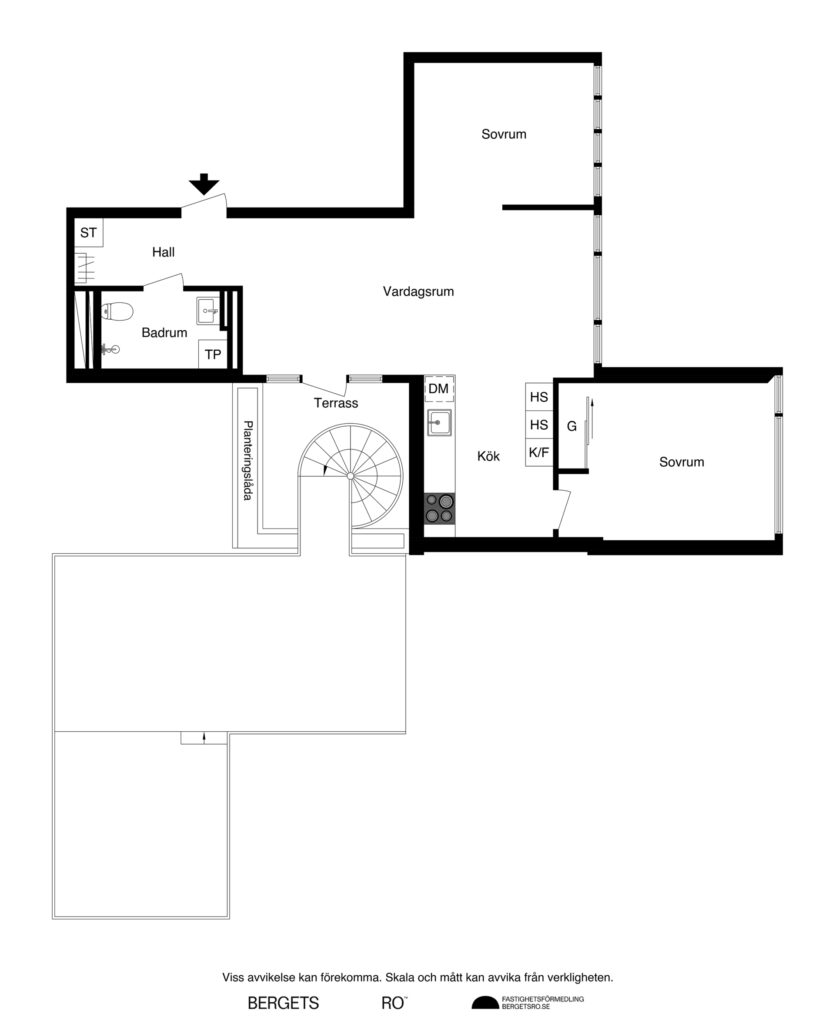
-2rok - MÖJLIG 3rok - TERRASS MED SOL FRÅN MORGON TILL KVÄLL - UTSIKT MOT GÄRDET - HÖGT I TAK - HÖGST UPP I PORTEN -
Välkommen till 79&Park – en arkitektonisk ikon som binder samman lugn natur och stadspuls! Detta prisbelönta projekt, signerat Bjarke Ingels, är ett av Stockholms mest uppmärksammade bostadshus – en unik
Läs mer
Rum 3 Boarea 70 kvm Areakälla Ekonomisk Förvaltare Månadsavgift 5 785 kr Våningsplan 4 Hiss Ja Balkong Ja Byggnadsår 2018
Upplåtelseform Bostadsrätt
Adress Sandhamnsgatan 75
Postadress 115 28 Stockholm
Område Östermalm - Gärdet
Kommun Stockholm
Rum 3
Boarea 70 kvm
Areakälla Ekonomisk Förvaltare
Våningsplan 4
Hiss Ja
Byggnadstyp Flerbostadshus
Balkong Ja
Byggnadsår 2018
OBS! Bostaden är registrerad som 3rok, men disponeras som 2rok.

Byggnadsinformation

Byggnadstyp Flerbostadshus
Byggnadsår 2018
Uppvärmning Fjärrvärme

Energideklaration

Status Utfört (2020-06-12)
Energiklass E

Föreningen

Namn BRF Stettin 7
Byggnadsår 2018
Byggnadstyp Flerbostadshus
Org.form Bostadsrätt
Org.nummer 769629-5869
Om föreningen Bostadsrättsföreningen registrerades 2015-02-13. Föreningens nuvarande ekonomiska plan samt stadgar registrerades 2017-09-27 hos Bolagsverket. Föreningen är ett s.k. privatbostadsföretag enligt inkomstskattelagen (1999:1229) och utgör därmed en äkta bostadsrättsförening.

Brf Stettin 7 består av totalt 169 st bostadsrätter. I föreningen finns 169 lägenheter, 1 förskola upplåten som bostadsrätt samt 8 lokaler som upplåts som hyresrätter.

Föreningens hemsida: https://stettin7.se/
Gemensamma utrymmen Det finns 3 gemensamma takterrasser i trapphus 1, 2 och 3 för medlemmar att nyttja. Det finns ett barnvagnsrum längst ner i varje trapphus. Cykelförråd finns i garage/källaren samt flertalet cykelställ ute. Förråd finns avsett för varje lägenhet uppdelat med tråd-galler i källaren. En lägenhet har förråd i lägenheten.

Det finns ingen gemensam tvättstuga. Alla lägenheter har egen tvättmaskin.
Föreningens ekonomi 2025 höjning med 2%
Inga beslutade avgiftshöjningar i nuläget. (enligt mail från styrelsen 2025-11-12)
Äkta förening Ja
Äger marken Ja
Antal lägenheter 169
TV/bredband Bredband och TV (basutbud) från Ownit
Tillåts juridisk person Nej
Tillåts delat ägande Ja
Renoveringar Utförda renoveringar:

2025 - Slipat och inoljat fönsterpartier samt fått nya fönster på plats i ett antal lägenheter som behövts bytas ut.
2022 - Föreningen har installerat ca 50 laddstolpar i garaget via E-ways, samt elektrifierat hela garaget
2022 - Garantibyte av vissa fönster runt om i fastigheten
2023-2024 - 5-årsbesiktning gentemot Oscar Properties genomfördes under

Under 2025 genomförs en rad underhållsarbeten som OVK, underhåll av hissar, inoljning av fönsterkarmar samt fönsterputs utvändigt.

Övrigt:
Överlåtelse- samt pantsättningsavgift tas ut enligt stadgar. Uppgifterna i denna objektsbeskrivning är grundade på av säljaren och av berörd förening lämnad information. Köpare/spekulanter uppmanas att kontrollera dessa uppgifter med föreningen rörande kommande renoveringar och eventuella avgiftsförändringar. Köpare/spekulanter är medvetna om att bostaden köpes i befintligt skick och uppmanas att undersöka bostaden ordentligt. Köparen uppmanas att kontrollera bostadens bo- och biarea om denna är väsentlig för köparen. Observera att nedtagning av väggar och/ eller väsentliga förändringar och ingrepp i bärande konstruktioner och ändring av ledningar för avlopp, värme, gas eller vatten av en lägenhet är alltid en fråga för föreningens styrelse att ta ställning till i varje enskilt fall. Detta gäller även om förändringen inte medför risker för byggnadens konstruktion. Köpare uppmanas även att kontrollera eventuella byggplaner o.s.v. i området om detta är av betydelse för köparen.
Parkering Garage: Garage finns i huset, platser ansöks via ViRedo. Kostnad 2 695kr/mån, på laddplats tillkommer det 200 kr/mån + en anslutningsavgift på 4 500kr (engångskostnad).
Det finns lediga tillståndsplatser – plats 1-38. För fast plats är det för närvarande ca 6-12 månaders väntetid. Väntetiden för en laddplats är ca 12-24 månader. Fler laddplatser installeras under 2025

Ekonomi

Månadsavgift 5 785 kr
Avgift för bostaden täcker kostnader för drift, underhåll, värme, vatten, räntor och amorteringar. Bredband och TV (basutbud) från Ownit.

Denna förening har ett gemensamt upphandlat elavtal som mäter respektive hushållsförbrukning. Detta debiteras i efterskott och läggs på avin tillsammans med månadsavgiften.
Emilia Aspelin Reg. Fastighetsmäklare 070- 999 30 02 emilia@bergetsro.se