Sankt eriksgatan 43

SÅLD
Välkommen till denna suveräna sekelskiftesvåning i en utav områdets vackraste fastigheter med ståtlig fasad från 1906 som andas charm och historia. Här kan du verkligen sätta din egna prägel på bostaden. En elegant sekelskiftestvåa med imponerande takhöjd om 3,30 meter och rymlig balkong. Dessutom har man en ståtlig
Slutpris
6 210 000 kr
Rum 2 Boarea 60 kvm Areakälla Ekonomisk Förvaltare Månadsavgift 2 368 kr Våningsplan 2.5/5 Hiss Ja Balkong Ja Byggnadsår 1906
Slutpris 6 210 000 kr
Upplåtelseform Bostadsrätt
Adress Sankt eriksgatan 43
Postadress 112 34 STOCKHOLM
Område Kungsholmen
Kommun Stockholm
Rum 2
Boarea 60 kvm
Areakälla Ekonomisk Förvaltare
Våningsplan 2.5/5
Hiss Ja
Byggnadstyp Flerbostadshus
Balkong Ja
Byggnadsår 1906
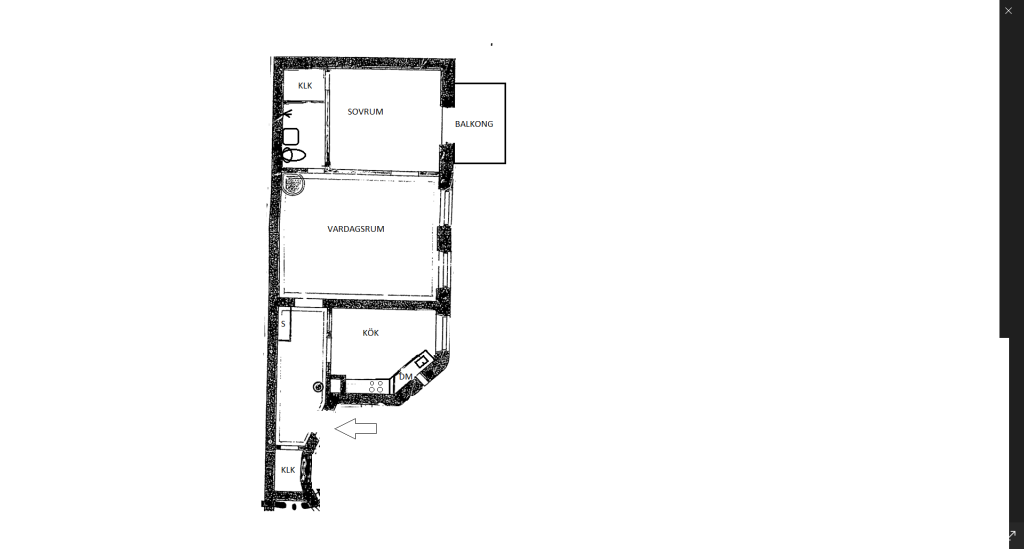
HALL
Inbjudande entré med goda förvaringsmöjligheter via klädkammare och vackert serverings skåp i original. Goda möjligheter finns här för fler garderober för den som önskar.

KÖK
Till höger om hallen nås köket. Ljus skåpinredning med gott om förvaring. Utrustat med diskmaskin, kyl/frys, spis/ugn, fläkt. Matbord kan placeras invid fönster som vetter mot föreningen innergård.

BADRUM
Rymligt badrum med våtrumsmatte och vitkaklade väggar. Vidare utrustat med dusch, wc, spegelskåp, handfat med kommod och handduksvärmare. Bra storlek för byggåret.

SOVRUM
Rymligt och rofyllt rum med plats för större dubbelsäng, sängbord, byrå och garderober. Här finns även en walk- in closet för förvaringsmöjligheter. Utgångs mot bostadens trevliga balkong i lugnt läge mot innergård.

BALKONG
Trevlig och rymlig balkong i lugnt fint läge mot föreningens innergård. Här kan med fördel njuta varma sommarkvällar.

VARDAGSRUM
Vardagsrummet erbjuder våningskänsla med sina stora fönsterpartier i fil och pampiga atmosfär. Generös takhöjd på 3,3 meter och vackra furutiljor i original. Ståtlig kakelugn stoltserar i ena hörnet.

Byggnadsinformation

Byggnadstyp Flerbostadshus
Byggnadsår 1906
Uppvärmning Fjärrvärme

Energideklaration

Status Utfört (2022-12-28)
Energiklass D

Föreningen

Namn BRF Korsningen 99
Byggnadsår 1906
Byggnadstyp Flerbostadshus
Org.form Bostadsrätt
Org.nummer 769604-1875
Om föreningen Föreningen har 1 hyreslägenhet och 32 bostadsrätter om totalt 2 664 kvm och 1 lokal om 173 kvm. Värdeåret är 1929.
Gemensamma utrymmen Barnvagnsrum, cykelrum, tvättstuga och innergård.
Föreningens ekonomi I dagsläget finns ingen beslutad avgiftsförändring, troligtvis kommer en höjning på 10%, enligt föreningens hemsida 15/5.
Äkta förening Ja
Äger marken Ja
Antal lägenheter 33 (varav 1 hyresrätter)
Lokaler 1 st
TV/bredband Kabel-TV levereras av Tele2 (Tidigare ComHem) finns i de äldre lägenheterna på plan 2-5. Sappa IP-TV via Bahnhof-anslutningen som tillval finns även tillgängligt. Bredband levereras av Bahnhof.
Tillåts juridisk person Nej
Tillåts delat ägande Ja
Renoveringar Utförda renoveringar:
• 2021 Mätning av inkommande vatten från grannförening
• 2021 Utbyte avgasare och tryckanläggning samt installation magnetitfilter för radiatorer på värmecentral
• 2021 Filmning spillvattenstammar
• 2020 Separering el, värme och vatten
• 2020 Åtgärdat brister, fönster takvåningar
• 2019 Målning fönster och trapphus
• 2019 Stamspolning
• 2019 OVK
• 2018 Översyn konstruktion/tak, vindsvåningar
• 2018 Uppdaterad underhållsplanen
• 2017-2018 Målning av tak
• 2016 Balkong
• 2014-2015 Renovering av hissar
• 2013 Renovering av brandbalkonger
• 2013 Ny balkong
• 2012 Bytt undercentral
• 2011 Renovering hiss i 85:an
• 2010 Energideklaration utfört
• 2009 Rörstambyte (slutfört källaren)
• 2009 Ny entrédörr i nr 43
• 2009 Renovering lokal
• 2009 Ny ventilation
• 2008-2009 Renovering gårdsbjälklag
• 2006 Målning av tak och fönster
• 2005 Kylsystem inkl värmeåtervinning
• 2003 Nya balkonger samt renovering av trapphus
• 1990 Nyinstallation hiss
• 1990 Rörstambyte och elstambyte

Planerade renoveringar:
Det finns inga beslutade större renoveringar i dagsläget, vi håller koll på fasaden och det kan bli aktuellt om några år beroende på hur skicket är. I övrigt kan det alltid dyka upp någon överraskning i en gammal byggnad.

Övrigt:
Överlåtelse- samt pantsättningsavgift tas ut enligt stadgar. Uppgifterna i denna objektsbeskrivning är grundade på av säljaren och av berörd förening lämnad information. Köpare/spekulanter uppmanas att kontrollera dessa uppgifter med föreningen rörande kommande renoveringar och eventuella avgiftsförändringar. Köpare/spekulanter är medvetna om att bostaden köpes i befintligt skick och uppmanas att undersöka bostaden ordentligt. Köparen uppmanas att kontrollera bostadens bo- och biarea om denna är väsentlig för köparen. Observera att nedtagning av väggar och/ eller väsentliga förändringar och ingrepp i bärande konstruktioner och ändring av ledningar för avlopp, värme, gas eller vatten av en lägenhet är alltid en fråga för föreningens styrelse att ta ställning till i varje enskilt fall. Detta gäller även om förändringen inte medför risker för byggnadens konstruktion. Köpare uppmanas även att kontrollera eventuella byggplaner o.s.v. i området om detta är av betydelse för köparen.
Parkering Föreningen har inga egna parkeringsplatser men boendeparkering finns i området.

Ekonomi

Pris 6 210 000 kr
Månadsavgift 2 368 kr
Inkl VA, Värme, bredband och förråd. Obligatoriskt tillägg om 81kr/mån för balkongfond.
Indirekt nettoskuldsättning 78 612 kr
Gabriel Bilir Reg. Fastighetsmäklare 070 421 94 50 gabriel@bergetsro.se